Beschrijving
Deze fijne tussenwoning met energielabel A is heerlijk gelegen aan het park, dichtbij een kinderboerderij en sportverenigingen en op loopafstand van basisscholen. Naast de mooie ligging is de woning ook netjes verzorgd en lekker licht dankzij de fijne doorzonindeling. Er is een moderne badkamer, 3 slaapkamers en een grote 2e verdieping waar zelfs een 4e slaapkamer gerealiseerd kan worden. Aan de voorzijde heeft de woning een heel verzorgd aanzicht met een keurige voortuin. In 2021 is het dak vernieuwd met isolatie en is er een nieuwe cv-ketel geplaatst.
Rozenburg is een gemoedelijk en groen dorp met een fijne, dorpse sfeer en alle dagelijkse voorzieningen binnen handbereik. Denk aan winkels, scholen, sportverenigingen en recreatiemogelijkheden. Bovendien ligt Rozenburg gunstig ten opzichte van uitvalswegen en steden, waardoor je zowel rustig woont als goed bereikbaar bent.
INDELING:
Voortuin:
De voortuin is grotendeels betegeld en heeft borders met met vaste beplanting.
Begane grond:
We komen binnen in de hal met ruimte voor de garderobe en meterkast.
Na de hal komen we in de Z-vormige woonkamer. De zithoek bevindt zich aan de voorzijde van de woning, met zicht op het groene grasveld, bomen en singel voor de deur. Aan de andere kant van de woonkamer is genoeg ruimte voor een grote eettafel en bijvoorbeeld een grote kast. Ook de kortere muur tegen de hal naar de 1e verdieping biedt ruimte voor een kast.
Links van het eetgedeelte, aan de achterzijde van de woning, bevindt zich de keuken. De keuken is in L-vorm en heeft een combinatie van antraciet kleurige frontjes en een houtlook werkblad. Verder vinden we een luik naar een trapkast; ideaal om lekker in op te bergen. Fijn dat de keuken in open verbinding is met het eetgedeelte van de woonkamer.
We gaan verder naar de achtertuin. De achtertuin is deels bestraat, maar ook mooi groen met vaste beplanting. De erfafscheiding met beide buren is uitgevoerd door middel van houten schuttingen. Achter in de tuin de achterom en een stenen berging met elektra. Via de achtergelegen steeg komen we bij een parkeerplein.
We gaan terug naar het midden van de woonkamer; hier bevindt zich een hal met toilet en trapopgang naar de 1e verdieping. Het toilet heeft een staand closet en een fonteintje. Bij de trapopgang is er houten lambrisering.
Eerste verdieping:
Via de trap gaan we naar de eerste verdieping. Hier vinden we de badkamer en 3 ruime slaapkamers, waarvan 2 aan de voorzijde van de woning -met uitzicht op het grasveld- en 1 aan de achterzijde. De hoofdslaapkamer ligt aan de voorzijde.
We gaan verder naar de badkamer. Deze is modern en neutraal afgewerkt, heeft een ligbad en een een aparte douche. Verder vinden we nog een wastafelmeubel met lades en een spiegel erboven, evenals een 2e toilet. Op de vloer en de badwand is er een mooie vergrijsde houtlook tegel. De overige wanden hebben witte tegels. Er is een witte handdoeken radiator. Heel fijn is ook dat er, behalve via mechanische ventilatie, ook geventileerd kan worden via het raam.
Tweede verdieping:
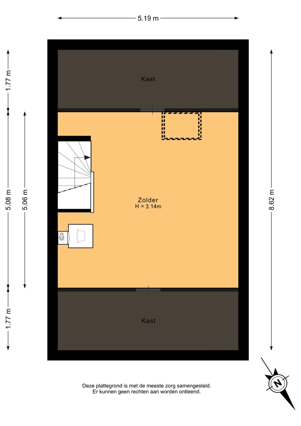
Op de tweede verdieping treffen we een grote open ruimte aan met een hoge nok en knieschotruimte. Naast de trap hangt de cv-ketel (Remeha, bouwjaar 2021) en hier bevindt zich ook de aansluiting voor de wasmachine en droger. Met een wand kan op deze verdieping een grote 4e slaapkamer gerealiseerd worden, ideaal als bijvoorbeeld tienerkamer of misschien zelfs als masterbedroom.
Bijzonderheden:
* De woning is in 1982 gebouwd
* Oplevering mogelijk vanaf juni 2026
* Betonnen vloeren
* CV-ketel Remeha, bouwjaar 2021
* Moderne badkamer
* De woning is volledig voorzien van houten kozijnen met dubbelglas
* Energielabel A
* Het dak is in 2021 vernieuwd met isolatie aan de buitenzijde; de dakpannen zijn vervangen, er is een nieuw dakraam geplaatst, evenals nieuwe goten en een nieuw rookgasafvoerkanaal
* Mooie ligging aan het park en dichtbij een kinderboerderij
Deze informatie is door ons met de nodige zorgvuldigheid samengesteld. Onzerzijds wordt echter geen enkele aansprakelijkheid aanvaard voor enige onvolledigheid, onjuistheid of anderszins, dan wel gevolgen daarvan. Alle opgegeven maten en oppervlakten zijn indicatief.