Beschrijving
Deze eengezinswoning heeft 3 slaapkamers en een badkamer op de 1e verdieping. De woonkamer heeft zicht op de diepe achtertuin, welke is gelegen op het zuiden. De halfopen keuken is aan de voorzijde van de woning en heeft plaats voor een eethoek. De woning is centraal gelegen, dicht bij een supermarkt, middelbare school, een park en uitvalswegen.
Rozenburg is een prettig en compleet dorp met een centrale ligging in de regio, dat nog beter bereikbaar is dankzij de nieuwe Blankenburgverbinding. Het dorp beschikt over meerdere basisscholen én een eigen middelbare school, wat het bijzonder aantrekkelijk maakt voor gezinnen. De combinatie van goede voorzieningen, sportverenigingen, een sfeervolle boulevard en een groene omgeving zorgt voor een fijne woonplek met alles dichtbij.
INDELING:
Voortuin:
De voortuin is bestraat en gelegen in een autovrij straatje.
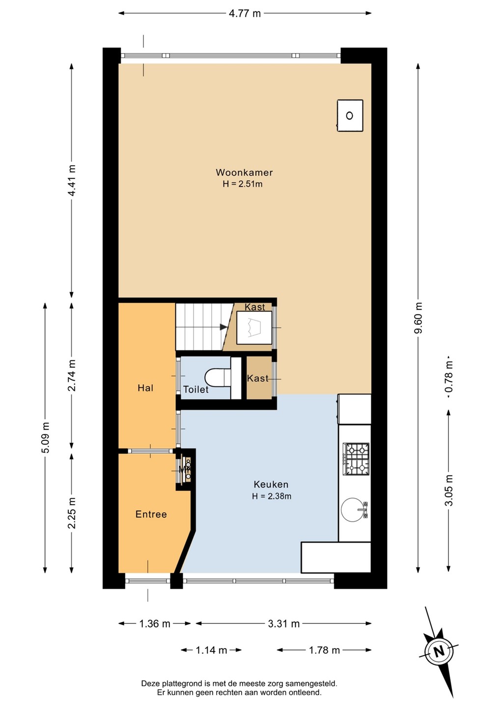
Begane grond:
In de hal vinden we de meterkast, toegang tot de keuken, de trapopgang naar de 1e verdieping en een toilet. Het toilet is volledig betegeld.
De keuken is gelegen aan de voorzijde van de woning en vergroot door de berging erbij te betrekken. Daardoor is er een woonkeuken ontstaan met ruimte voor een eettafel. De keuken is voorzien van diverse apparatuur: een 5-pits gaskookplaat, een rvs-afzuigkap, een vaatwasser, een koelkast en een combimagnetron. De keukenkasten zijn uitgevoerd in gebroken wit met een houtlook aanrechtblad. Deze houtlook is doorgevoerd op de achterwand, met achter de kookplaat witte metrotegels. De keuken heeft elektrische vloerverwarming.
De keuken was oorspronkelijk dicht, maar hier is een open verbinding gecreëerd met een doorloop naar de woonkamer. Onder de trap zijn 2 kasten gemaakt: 1 met de aansluiting voor de wasmachine en de andere voor bergruimte. We gaan door naar de woonkamer, waar de zithoek uitkijkt op de achtertuin. De grote raampartijen zorgen voor veel lichtinval en er is een houtkachel in de woonkamer.
De tuin is grotendeels betegeld, is heerlijk diep, heeft een zonnige ligging op het zuiden en beschikt over een berging welke vergroot is en een achterom.
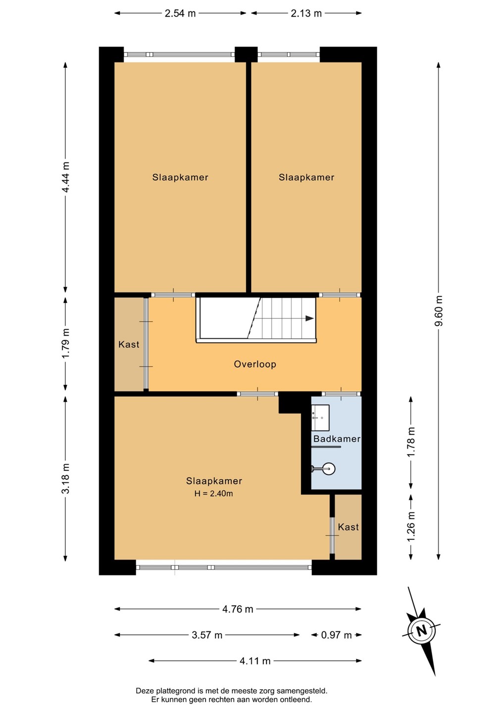
Eerste verdieping:
Via de trap in de hal komen we aan op de 1e verdieping. De overloop geeft toegang tot de 3 slaapkamers en de badkamer. Er is ook nog een ruime, vaste bergkast. De ramen op deze verdieping zijn enkelglas en allen voorzien van een rolluik.
De master bedroom is gelegen aan de voorzijde van de woning. De slaapkamer heeft een vaste kast en airco. Aan de achterzijde vinden we nog 2 ruime slaapkamers. 1 van deze slaapkamers heeft een vaste kast waar de cv-ketel (Intergas, 2009) in hangt.
De badkamer is volledig betegeld en voorzien van een inloopdouche en een wastafel met een spiegel erboven.
Bijzonderheden:
*Bouwjaar 1965 (eigen grond)
*Cv-ketel Intergas 2009
*Energielabel D
*De woning is voorzien van houten kozijnen. Er is dubbel glas op de begane grond, met uitzondering van de voordeur en het raam boven de deur. De 1e verdieping is voorzien van enkelglas
*Oplevering 1 juni 2026
*De woning wordt verkocht met een ouderdomsclausule
Deze informatie is door ons met de nodige zorgvuldigheid samengesteld. Onzerzijds wordt echter geen enkele aansprakelijkheid aanvaard voor enige onvolledigheid, onjuistheid of anderszins, dan wel voor de gevolgen daarvan. Alle opgegeven maten en oppervlakten zijn indicatief.