Beschrijving
Gelegen in een geliefde en kindvriendelijke wijk op Rozenburg bevindt zich deze ruime eengezinswoning met een garage. De woning beschikt over een aangenaam lichte woonkamer en een keuken met directe toegang tot de diepe, zonnige achtertuin op het zuiden. De aluminium kozijnen en de dakkapel met kunststof kozijnen zorgen voor een onderhoudsvriendelijk geheel. Aan de achterzijde zijn twee schuifpuien aanwezig, waardoor binnen en buiten naadloos in elkaar overlopen. In de achtertuin bevinden zich een berging en een garage met een elektrische garagedeur, gesitueerd aan een parkeerpleintje. Dankzij de dakkapel op de tweede verdieping is er extra woonruimte gecreëerd. De woning is altijd keurig onderhouden en biedt een solide basis om direct comfortabel te wonen.
INDELING:
Voortuin:
Aan de voorzijde van de woning bevindt zich een voortuin met betegeling en struiken. Voor de voortuin ligt een stoep en een groenstrook met gras en bomen, gelegen aan de Rivierenlaan.
Begane grond:
We komen binnen via de entreehal. In de hal bevinden zich de meterkast, de trap naar de eerste verdieping en de toiletruimte. Het toilet is gedeeltelijk betegeld en voorzien van een handenwasbakje.
We stappen binnen in de heerlijk lichte woonkamer met grote raampartijen. De houten vloer ligt over de gehele benedenverdieping. De zithoek bevindt zich aan de voorzijde en kijkt uit op de Rivierenlaan. Het raam aan de voorzijde van de woonkamer is voorzien van een rolluik. Aan de achterzijde staat de eettafel, met uitzicht op de fijne achtertuin. De tuin is bereikbaar via de schuifpui in de eethoek, maar ook via een tweede schuifpui in de keuken.
De keuken is halfopen en geplaatst in een L-opstelling, met onder- en bovenkasten die veel opbergruimte bieden. De keuken is voorzien van de volgende inbouwapparatuur: een 5-pits gasfornuis, afzuigschouw, vaatwasser, oven, koelkast en een close-in boiler.
Achtertuin:
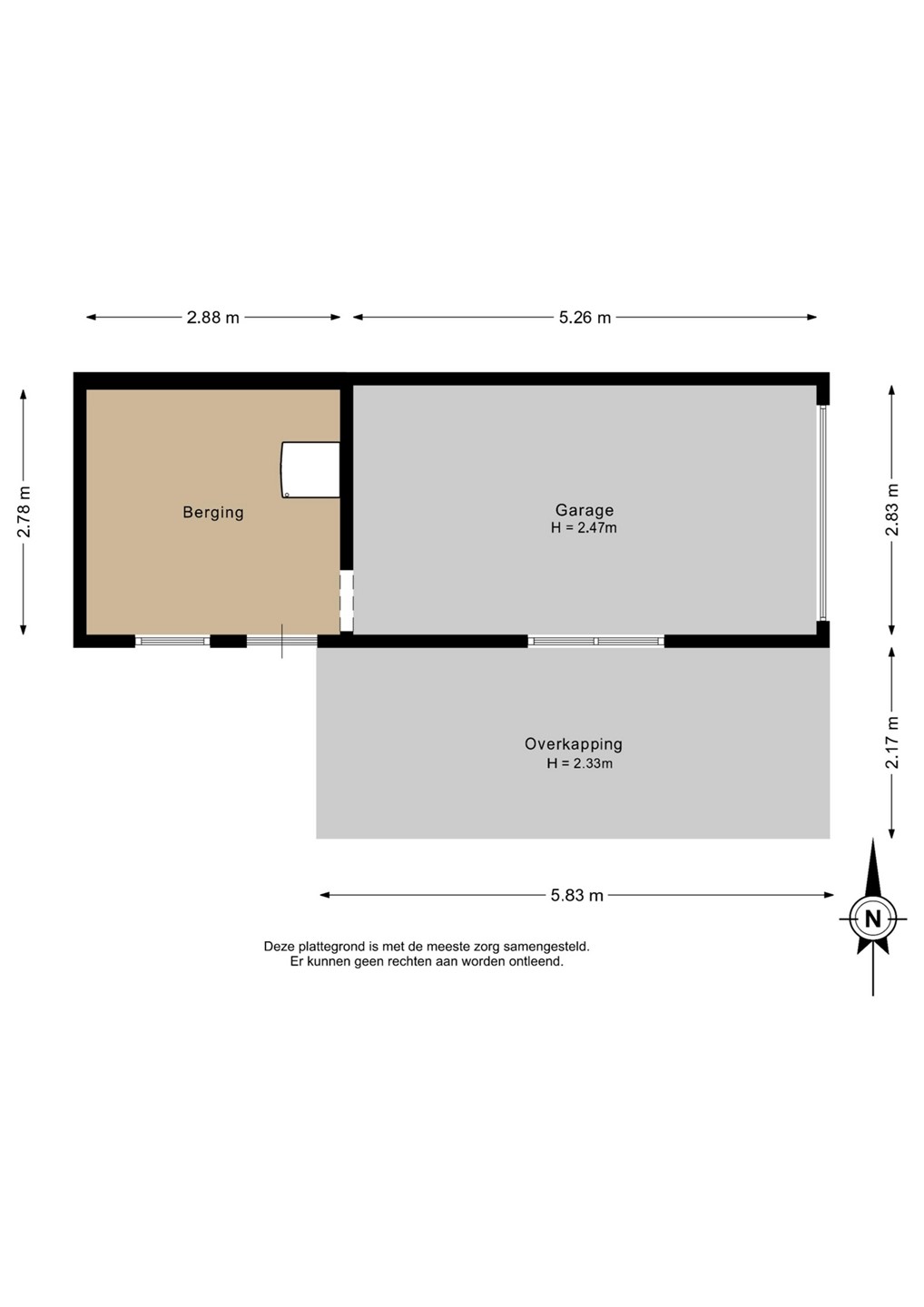
Vanuit de keuken heeft u toegang tot de ruime achtertuin, gelegen op het zuiden. De tuin is voorzien van een elektrisch zonnescherm over de volledige breedte van de woning en een buitenkraantje. Achter in de tuin bevinden zich de berging en de aaneengesloten garage.
Garage:
De garage biedt voldoende ruimte voor het parkeren van een auto en beschikt over veel opslagruimte. De garage is bereikbaar via de deur van de direct naastgelegen berging of via de elektrische garagedeur aan de buitenzijde. Achter de woning ligt een parkeerplein. Terug naar binnen, naar de hal van de woning, waar we de trapopgang naar de eerste verdieping vinden.
Eerste verdieping:
Via de trap in de hal bereiken we de eerste verdieping. Vanaf de overloop is er toegang tot drie slaapkamers en de badkamer. Slaapkamer 1, de hoofdslaapkamer, is gelegen aan de achterzijde van de woning en biedt een leuk uitzicht op de tuin. Slaapkamer 2 is eveneens ruim genoeg om als hoofdslaapkamer te dienen, heeft veel lichtinval en kijkt uit op de Rivierenlaan. Slaapkamer 1 & 2 hebben beide een ingebouwde schuifdeurenkast welke achterblijven. De derde slaapkamer beschikt over een vaste bergkast en kijkt eveneens uit op de tuin.
De badkamer, gelegen aan de voorzijde van de woning, is voorzien van een ligbad met douche, wastafel en radiator. Een groot voordeel is het raam, dat zorgt voor natuurlijk daglicht.
De gehele 1e verdieping is voorzien van rolluiken, zelfs het badkamerraam!
Tweede verdieping:
Via een vaste trap bereiken we de tweede verdieping. We komen uit op een voorzolder met een klein dakraam en knieschotruimte. Hier bevinden zich ook de aansluitingen voor de wasmachine en droger, evenals de opstelling van de cv-ketel (Remeha, 2017).
Aansluitend vinden we een extra slaapkamer/werkkamer met veel bergruimte, waar een dakkapel is geplaatst die zorgt voor extra ruimte en licht. De kozijnen van de dakkapel zijn uitgevoerd in kunststof.
Bijzonderheden:
*Bouwjaar ca. 1967
*Oplevering half mei 2026
*Energielabel B
*Cv-ketel Remeha bouwjaar 2017.
*De woning is voorzien van aluminium kozijnen, de dakkapel heeft kunststof kozijnen.
* De woning wordt verkocht met een ouderdomsclausule.
Deze informatie is door ons met de nodige zorgvuldigheid samengesteld. Onzerzijds wordt echter geen enkele aansprakelijkheid aanvaard voor enige onvolledigheid, onjuistheid of anderszins, dan wel gevolgen daarvan. Alle opgegeven maten en oppervlakten zijn indicatief.