Beschrijving
In de kindvriendelijke Ervenbuurt van Rozenburg staat deze ruime en speels ingedeelde hoek-eengezinswoning met maar liefst vier slaapkamers, een royale woonkamer met open keuken, een verzorgde achtertuin op het zuidoosten én een grote berging. De woning is de afgelopen jaren netjes onderhouden. In 2023 is er nieuwe dakbedekking aangebracht, is er een nieuwe cv-ketel geplaatst en heeft de tuin nieuwe schuttingen gekregen.
Met een speeltuin in de wijk, een bushalte op loopafstand, en het zwembad en sportcomplex vlakbij, evenals basisscholen op korte afstand, is dit een ideale plek voor gezinnen die op zoek zijn naar comfort én gemak. Rozenburg is een gemoedelijk en groen dorp met een verrassend compleet voorzieningenaanbod. Het dorp staat bekend om zijn rustige woonwijken, veel groen en een sterke gemeenschapsgevoel. Voor gezinnen is het een fijne plek om te wonen: er zijn meerdere basisscholen, sportverenigingen, speeltuinen en een zwembad. Ook voor dagelijkse boodschappen kun je terecht in het gezellige dorpscentrum met diverse winkels en horeca. Hier woon je rustig en dorps, met alle voorzieningen binnen handbereik.
INDELING
Voortuin & zijtuin
De voortuin is opvallend ruim, netjes verzorgd en volledig omheind met een afsluitbaar hekwerk, wat zorgt voor een verzorgd aanzicht. Aan de rechterzijde bevindt zich een deur naar de inpandige, ruime berging. Links ligt de zijtuin met een zijraam dat is voorzien van een elektrisch rolluik. Middels een schuttingdeur aan de zijkant krijgen we toegang tot de achtertuin.
Begane grond
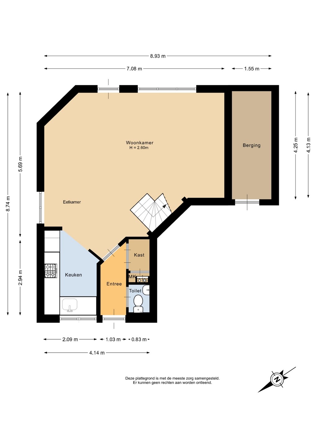
We betreden de woning via de entreehal, waar aan de rechterzijde de deur naar het toilet is. Het toilet is voorzien van een staand closet en een fonteintje. Daarnaast bevindt zich hier een deur naar een vaste kast, waar tevens de moderne meterkast is geplaatst.
Via de hal komen we in de verrassend ruime en lichte woonkamer, die direct in verbinding staat met de open keuken. Wat hier meteen opvalt zijn het zijraam en de grote raampartijen die veel daglicht binnenlaten, én de speelse indeling die deze woning echt bijzonder maakt.
De gehele begane grond is voorzien van een parketvloer. Aan de tuinzijde van de woning bevindt zich een gezellige zithoek. Aan de voorzijde heeft de keuken een centrale plek gekregen, met de eethoek aan het raam. In het midden van de ruimte zorgt de open trap naar boven voor een speels en luchtig effect.
Keuken
De keuken beschikt over veel bergruimte in boven- en onderkasten en is voorzien van de volgende apparatuur: een 5-pits gaskookplaat met daarboven een afzuigkap, een oven (2020) en een koel-vriescombinatie (2021).
Achtertuin
Vanuit de woonkamer is er toegang tot de achtertuin, die is gelegen op het zuidoosten. De tuin is deels bestraat en beschikt over borders met vaste beplanting. De moderne schuttingen (geplaatst in 2023) zorgen voor een nette erfafscheiding. In de tuin staat een houten tuinhuisje dat zorgt voor prettig veel extra bergruimte. Aan de gevel hangt een elektrisch zonnescherm over de breedte van de woning.
Eerste verdieping
Via de open trap in de woonkamer bereiken we de eerste verdieping. Hier bevinden zich drie slaapkamers, een ruime badkamer en de trapopgang naar de tweede verdieping. De huidige hoofdslaapkamer is gelegen aan de achterzijde en is voorzien van een zijraam met elektrisch rolluik. De tweede slaapkamer ligt eveneens aan de achterzijde en de derde slaapkamer bevindt zich aan de voorzijde. De badkamer beschikt over een ligbad, een wastafel met spiegel en daarnaast is er een tweede toilet aanwezig.
Tweede verdieping
Via een vaste trap bereiken we de tweede verdieping. Hier komen we eerst op een kleine overloop die toegang geeft tot zowel de vierde slaapkamer als een ruime berging. De slaapkamer is verrassend ruim en biedt voldoende plek voor een tweepersoonsbed. De aangrenzende berging biedt volop opbergruimte. Hier bevinden zich tevens de aansluitingen voor de wasmachine en droger, evenals de opstelling van de cv-ketel (Remeha, bouwjaar 2023).
Bijzonderheden
• Bouwjaar ca. 1978, eigen grond
• Oplevering in overleg, snel beschikbaar
• Cv-ketel Remeha (2023)
• Energielabel C
• Elektrische rolluiken aanwezig bij het zijraam van de woonkamer en het zijraam van de hoofdslaapkamer
• Het dak is in 2023 vernieuwd en voorzien van nieuwe dakbedekking
• De woning is nagenoeg geheel voorzien van dubbel glas. De kozijnen zijn van hout. De raampjes in en boven de voordeur zijn enkel glas
• In de koopovereenkomst wordt een ouderdomsclausule opgenomen
Deze informatie is door ons met de nodige zorgvuldigheid samengesteld. Onzerzijds wordt echter geen enkele aansprakelijkheid aanvaard voor enige onvolledigheid, onjuistheid of anderszins, dan wel de gevolgen daarvan. Alle opgegeven maten en oppervlakten zijn indicatief.