Beschrijving
Gelegen in een geliefde en kindvriendelijke wijk op Rozenburg bevindt zich deze fijne eengezinswoning. De woning is geheel voorzien van kunststof kozijnen met dubbel glas en op de tweede verdieping is een dakkapel geplaatst, waardoor een fijne vierde slaapkamer is gecreëerd. In de achtertuin bevindt zich een berging met een extra brede (dubbele) deur, gesitueerd aan een parkeerpleintje; ideaal voor motorliefhebbers of voor een grote bakfiets. Het toilet op de begane grond is gloednieuw en de moderne badkamer is uit 2022. Er zijn meerdere rolluiken en 12 zonnepanelen aanwezig.
De woning ligt in de geliefde Rivierenbuurt op Rozenburg, met een park aan de zijkant. Ook winkels, basisscholen en de middelbare school zijn dichtbij. Rozenburg staat bekend als een rustig en groen dorp met een goede verbinding richting Rotterdam en Zeeland. Sinds de komst van de Blankenburgverbinding zijn ook het Westland en de regio Den Haag snel bereikbaar.
INDELING:
Voortuin:
Aan de voorzijde van de woning bevindt zich een voortuin met betegeling en plantenbakken. Voor de voortuin ligt een stoep en een autoluwe groenstrook met gras en bomen, gelegen aan het Merwedepad en naast een park.
Begane grond:
We komen binnen via de entreehal. In de hal bevinden zich de moderne meterkast, de trap naar de eerste verdieping en de toiletruimte (2026). Het toilet is volledig betegeld met een moderne grijze tegel en voorzien van een hangend closet en een fonteintje.
We stappen binnen in de heerlijk lichte woonkamer met grote raampartijen. De grijze pvc-vloer ligt over de gehele benedenverdieping. De zithoek bevindt zich aan de voorzijde. Het raam aan de voorzijde van de woonkamer is voorzien van een rolluik. Aan de achterzijde staat de eettafel, met uitzicht op de fijne achtertuin. De woonkamer is voorzien van airconditioning.
De keuken bereiken we via de hal. Deze heeft een rechte opstelling en eveneens grote ramen. De keuken is voorzien van de volgende inbouwapparatuur: een inductiekookplaat, afzuigschouw, vaatwasser, combioven, koelkast, vriezer en een close-in boiler.
Achtertuin:
Vanuit de keuken is er toegang tot de moderne achtertuin. De tuin is voorzien van een elektrisch zonnescherm over de volledige breedte van de woning en een buitenkraantje. Achter in de tuin bevindt zich de berging met elektra en een extra brede deur. Achter de woning ligt een parkeerplein.
We gaan terug naar binnen, naar de hal van de woning, waar we de trapopgang naar de eerste verdieping vinden.
Eerste verdieping:
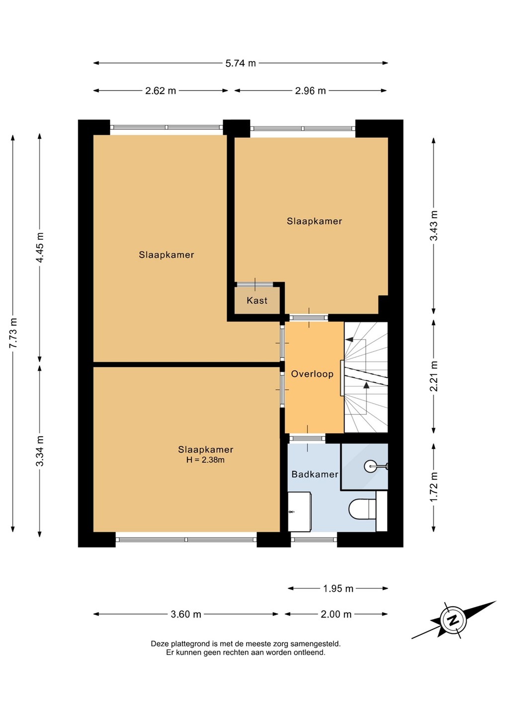
Via de trap in de hal bereiken we de eerste verdieping. Vanaf de overloop is er toegang tot drie slaapkamers en de badkamer. Slaapkamer 1, de hoofdslaapkamer, is gelegen aan de voorzijde van de woning en is voorzien van airconditioning. Slaapkamer 2 (momenteel in gebruik als werkkamer) is eveneens ruim genoeg om als hoofdslaapkamer te dienen en is voorzien van een elektrisch rolluik. Slaapkamer 3 heeft een vaste bergkast en is tevens voorzien van een elektrisch rolluik.
De moderne badkamer is geplaatst in 2022, ligt aan de voorzijde van de woning en is voorzien van een douche, wastafel, tweede toilet en radiator. Een groot voordeel is het raam, dat zorgt voor natuurlijke ventilatie en daglicht.
Tweede verdieping:
Via een vaste trap bereiken we de tweede verdieping. We komen uit op een voorzolder met veel knieschotruimte, waar we ook al profiteren van de brede dakkapel. Hier bevinden zich tevens de aansluitingen voor de wasmachine en droger. Aansluitend vinden we de vierde ruime slaapkamer, waar een dakkapel is geplaatst die zorgt voor extra ruimte en licht. De kozijnen van de dakkapel zijn uitgevoerd in kunststof. Achter een deur bevindt zich de opstelling van de cv-ketel (Remeha, 2017) en de omvormer van de 12 zonnepanelen.
Bijzonderheden:
* Bouwjaar 1967
* Dakkapel op de 2e verdieping
* Badkamer uit 2022 en toilet op de begane grond is nieuw
* Extra brede berging deur (ideaal voor motors of bakfiets)
Geheel voorzien van kunststof kozijnen met dubbel glas
Elektrisch zonnescherm, meerdere rolluiken en airconditioning aanwezig
12 zonnepanelen
Energielabel B
Oplevering in overleg, mogelijk vanaf juli 2026
Deze informatie is door ons met de nodige zorgvuldigheid samengesteld. Onzerzijds wordt echter geen enkele aansprakelijkheid aanvaard voor enige onvolledigheid, onjuistheid of anderszins, dan wel gevolgen daarvan. Alle opgegeven maten en oppervlakten zijn indicatief.