Beschrijving
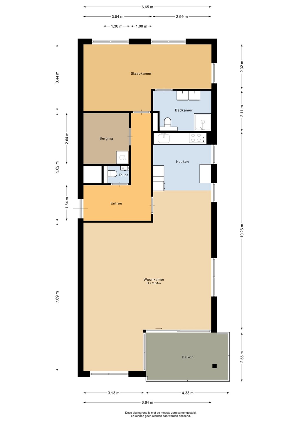
Wauw! Dit uitzicht willen we elke dag wel hebben! Een schitterend zicht over het Scheur, bijna tot aan Hoek van Holland toe. Door een slaapkamer bij de woonkamer te betrekken is er een zeer ruime woonkamer met open keuken ontstaan. De woonkamer is licht door de vele raampartijen en er zijn diverse hoekjes gecreëerd met allen een eigen functie. Genoeg ruimte om heerlijk van het uitzicht te genieten maar ook de levendigheid van het dorp te ervaren.
De slaapkamer heeft toegang tot de ruime badkamer met 2e toilet. Er is een inpandige berging met ruimte voor de wasmachine en diverse opbergmogelijkheden.
INDELING
We komen binnen in de entree waar ons oog meteen valt op de zwart gemarmerde tegelvloer (met vloerverwarming) die drempelloos door de gehele woning is doorgelegd. Vanuit de entreehal is er toegang tot het toilet, de woonkamer, de inpandige berging en de slaapkamer.
Het toilet is halfhoog betegeld, met op de vloer en achter het toilet een tegel in antraciet en op de muren een tegel in wit. Ook is er een fonteintje.
Wanneer we in de woonkamer komen is het eerste waar je blik naartoe wordt het getrokken het fantastische uitzicht! Het is mogelijk om bijna tot aan Hoek van Holland toe te kijken, we zien de veerpont en boten varen, er is gewoon altijd wel wat te zien.
Het appartement heeft van oorsprong een kleinere woonkamer want bij de bouw hebben de toenmalige kopers ervoor gekozen om een slaapkamer bij de woonkamer te trekken. Hierdoor is er een zeer ruime zithoek ontstaan en heeft de eettafel een plek aan de raamzijde gekregen, met zicht op het Scheur.
Vanuit het zitgedeelte is er via de schuifpui toegang tot het balkon. Deze is voorzien van een siervloer en er is genoeg ruimte voor een loungeset. Heerlijk om vanaf hier alle bedrijvigheid op het water te ervaren.
De open keuken is ruim opgezet en uitgevoerd met zwarte hoogglans frontjes en een composiet werkblad in beige met een grijs/zilveren glitter erin. Naast de kastruimte vinden we hier de volgende inbouwapparatuur terug: een 4-pits inductiekookplaat met daarboven een zwarte afzuigkap, een vaatwasser, een combimagnetron en een koelkast. De keuken heeft een rechte opstelling met nog een hoge kastenwand en een lage kast met daarop aanrechtblad, waardoor er extra werkruimte is ontstaan. Door barkrukken erbij te plaatsen is het ook een gezellige plek om te zitten als er gekookt wordt.
We gaan verder naar de slaapkamer met uitzicht op de plaatselijke tennisvereniging en het park. De slaapkamer is voorzien van dezelfde zwart gemarmerde plavuizenvloer, heeft grote raampartijen en vanuit de slaapkamer is er toegang tot de badkamer.
De badkamer is volledig betegeld, met op de vloer een tegel in antraciet die 2 tegels breed doorloopt over de muur in de doucheruimte en ook doorloopt achter het toilet. Op de muren een witte tegel. De brede wastafel heeft 2 kranen, een ladekast eronder en een spiegelkast erboven. De inloopdouche is voorzien van een zwarte glazen wand met brede deur en een regendouche met een handdouche. Naast de wastafel hangt een desingradiator.
In de ruime inpandige berging is de opstelling voor de wasmachine en droger, hangt de CV-ketel (Intergas bouwjaar 2013), de unit voor de mechanische ventilatie en is er een grote kastenwand.
Op de begane grond vinden we tot slot nog een eigen berging en een eigen parkeerplaats die bij het appartement horen. Toegang hiertoe is via de centrale hal en de garage/schuifdeur.
Bijzonderheden
*Bouwjaar 2014
*Oplevering begin maart 2026
*De gehele woning is voorzien van kunststof kozijnen met HR glas
*CV-ketel Intergas, bouwjaar 2013
*Het appartement heeft energielabel A
*Bij het appartement behoren een eigen parkeerplaats en een berging op de begane grond
*De VVE kosten bedragen € 204,- per maand (december 2025)
Deze informatie is door ons met de nodige zorgvuldigheid samengesteld. Onzerzijds wordt echter geen enkele aansprakelijkheid aanvaard voor enige onvolledigheid, onjuistheid of anderszins, dan wel gevolgen daarvan. Alle opgegeven maten en oppervlakten zijn indicatief.