Beschrijving
Deze lichte tussenwoning met 3 slaapkamers is gelegen in een fijne woonwijk aan de Kastanjelaan in Rozenburg. De woning is grotendeels voorzien van kunststof kozijnen met dubbele beglazing. Een woning om helemaal naar eigen smaak te verbouwen en in te richten!
De woning ligt in een kindvriendelijke woonwijk. De supermarkt bevindt zich op korte afstand, evenals een park en de boulevard. Rozenburg is een groen en rustig dorp met een ideale verbinding richting Rotterdam en Zeeland. Sinds de komst van de Blankenburgverbinding ben je bovendien snel in het Westland en rijd je gemakkelijk door richting de regio Den Haag. Rozenburg staat bekend als een prettig en vriendelijk dorp waar iedereen zich snel thuis voelt.
INDELING
Begane grond:
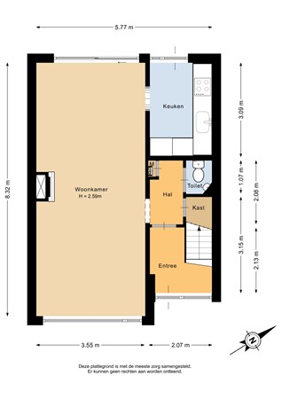
Entree, hal voorzien van meterkast, trapkast, de trapopgang naar de 1e etage en het toilet. Het toilet is volledig betegeld en voorzien van een fonteintje.
De lichte doorzonwoonkamer heeft een schuifpui die toegang biedt tot de tuin. De haard is een centraal punt in de woonkamer.
De tuin heeft achterin een stenen berging en een toegangspoort en is grotendeels betegeld. Aan de zijkant zijn er borders met diverse vaste planten. Boven de schuifpui en achterdeur hangt een zonnescherm.
De keuken is bereikbaar vanuit de woonkamer en is in L-opstelling. De basic keuken is voorzien van diverse inbouwapparatuur. Vanuit de keuken is er ook toegang tot de achtertuin.
Eerste verdieping:
De overloop biedt toegang tot 3 slaapkamers, de badkamer en een vaste kast. In alle slaapkamers ligt vloerbedekking. De masterbedroom is aan de achterzijde en deze heeft een vaste kast en een vaste schuifdeurenkast. Slaapkamer 2 is gelegen aan de voorzijde van de woning en heeft een vaste kast. Slaapkamer 3 is gelegen aan de achterzijde van de woning.
De badkamer is volledig betegeld. De inloopdouche is voorzien van een glazen deur. Onder de wasbak is er een kast en boven de wasbak is een spiegelkast. Handig is het raam in de badkamer, ideaal voor de nodige ventilatie.
In de vaste kast op de overloop is de aansluiting voor de wasmachine aanwezig.
Tweede verdieping:
Middels een vlizo trap bereiken we de 2e verdieping, waar de ruimte in 2 delen is opgesplitst. Op de voorzolder is de cv-ketel (Remeha 2013) geplaatst. Het 2e gedeelte van deze verdieping heeft een dakraam. De 2e verdieping mogen we door de stahoogte niet meetellen als gebruiksoppervlakte wonen maar als overig inpandige woonruimte (meetrapport aanwezig).
Bijzonderheden
*Bouwjaar: 1967, gelegen op eigen grond
*Oplevering per direct
*Voorzien van kunststof kozijnen met dubbel glas, met uitzondering van het dakraam op de 2e verdieping
*Cv-ketel Remeha 2013
*Energielabel D
*De woning wordt verkocht met een ouderdomsclausule
*De woning wordt verkocht met een niet-zelfbewoningsclausule (verkoper heeft de woning niet zelf bewoond) Daarom zijn er geen vragenlijsten aanwezig
*De woning wordt verkocht met een clausule waarin beschreven staat de dat rechtbank toestemming dient te verlenen voor de verkoop van de woning
*Voor de overdracht van de woning is een projectnotaris benoemd: Katoen Notaris in Spijkenisse
Deze informatie is door ons met de nodige zorgvuldigheid samengesteld. Onzerzijds wordt echter geen enkele aansprakelijkheid aanvaard voor enige onvolledigheid, onjuistheid of anderszins, dan wel gevolgen daarvan. Alle opgegeven maten en oppervlakten zijn indicatief.