Beschrijving
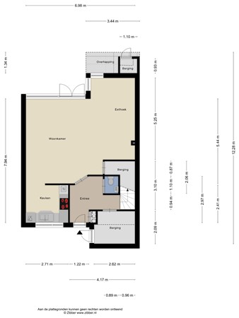
Deze lichte en ruim opgezette woning ligt op een prachtige locatie aan een singel en heeft veel potentie. De brede woonkamer met grote raampartijen zorgt voor veel natuurlijk licht, de zonnige tuin op het zuiden is een heerlijke plek om te ontspannen en op de eigen oprit is ruimte voor twee auto’s. Aan de voorzijde vind je een praktische berging. De woning is direct te betrekken, al kun je er met wat modernisering helemaal je eigen draai aan geven. Een mooie extra: in de straat hebben meerdere buren de woning levensloopbestendig gemaakt met een slaapkamer en badkamer op de begane grond – ook hier is die mogelijkheid er.