Beschrijving
Wat een fijn huis met energielabel A++! Deze heerlijk lichte en goed onderhouden tussenwoning beschikt over 4 slaapkamers, twee dakkapellen (aan zowel de voor- als achterzijde) op de 2e verdieping, een warmtepomp en maar liefst 19 zonnepanelen. De woning is gasloos, volledig voorzien van dubbel glas en daarmee helemaal voorbereid op de toekomst.
De woning is gelegen in een prettige en rustige woonomgeving in Rozenburg, op korte afstand van een park waar je heerlijk kunt wandelen in het groen. Ook voorzieningen zoals een supermarkt en de huisarts bevinden zich vlakbij, wat zorgt voor veel gemak in het dagelijks leven. Dankzij de nieuwe Blankenburgverbinding (A24) is de bereikbaarheid bovendien sterk verbeterd en zijn onder andere de A15 en A20 snel en eenvoudig te bereiken. Hierdoor zijn steden en omliggende regio’s goed toegankelijk, terwijl je toch rustig woont in een dorpse en groene omgeving.
INDELING:
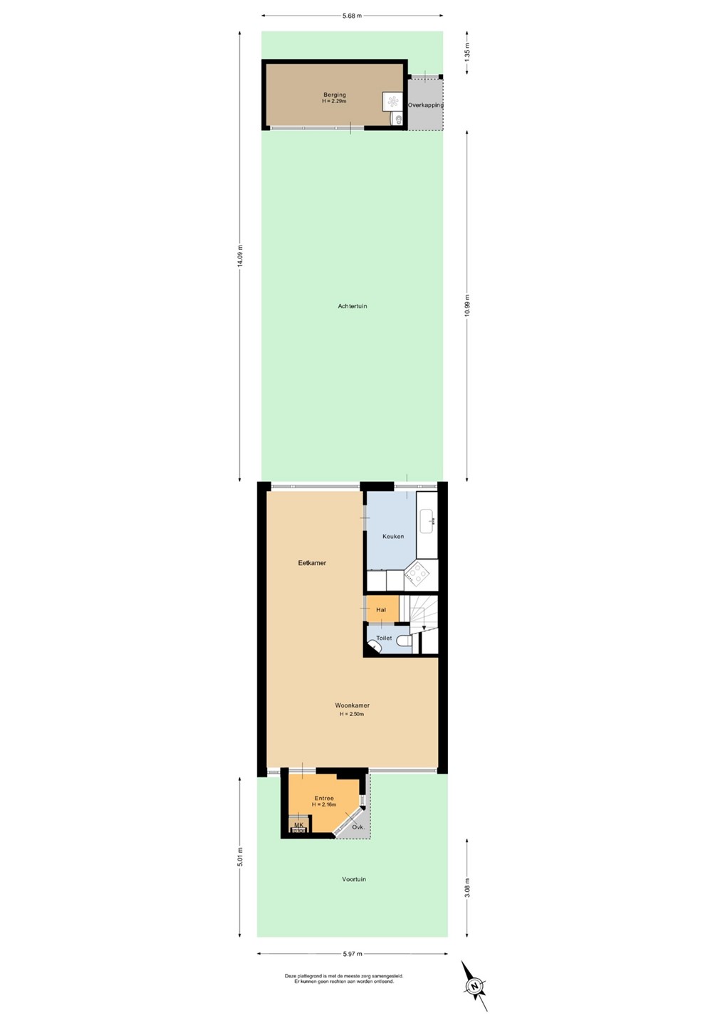
Voortuin:
De voortuin is volledig betegeld en ligt aan een voetpad met een groenstrook voor de deur.
Begane grond:
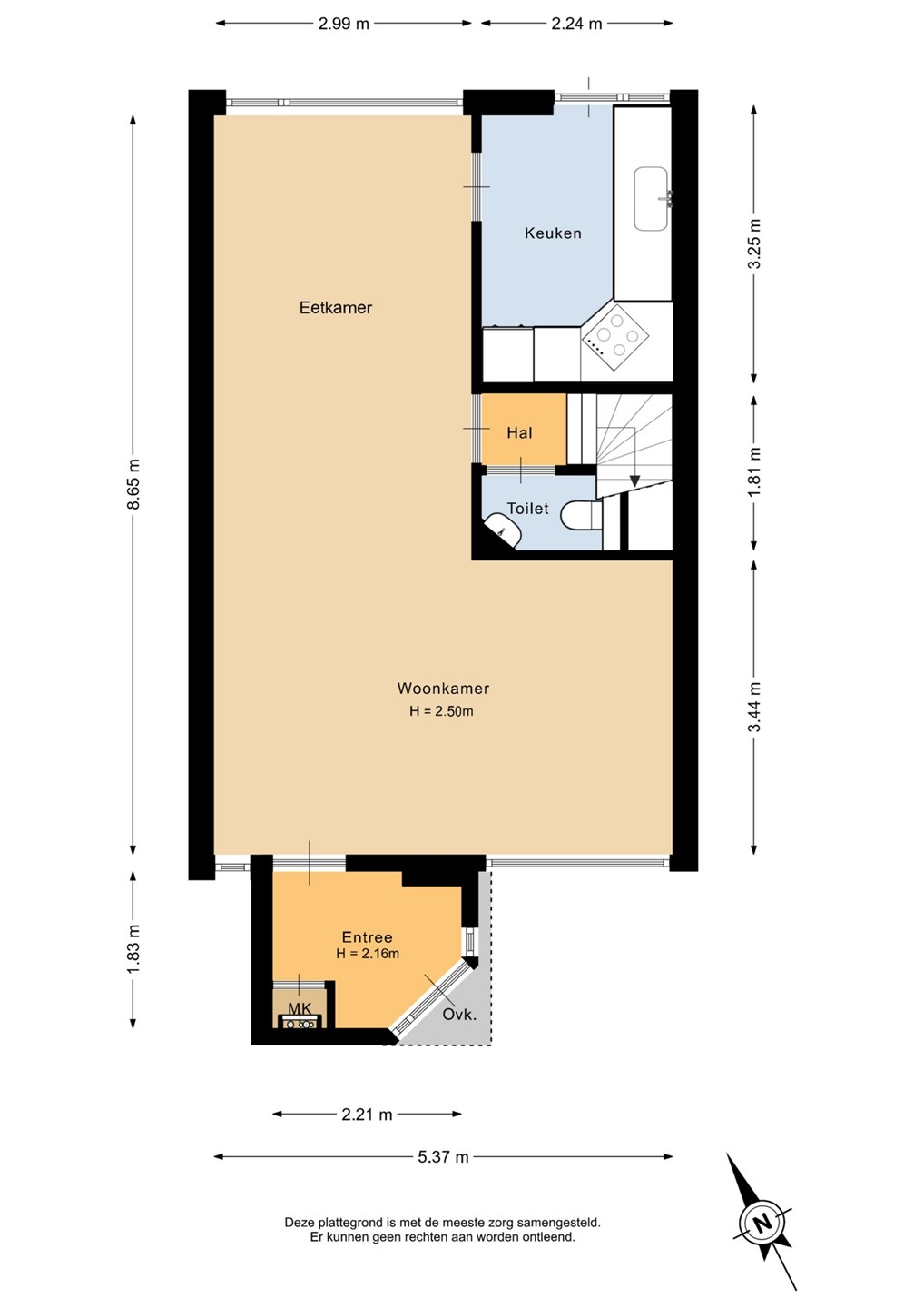
We komen binnen in de vergrote en geïsoleerde entree, waar ruimte is voor de garderobe en waar zich ook de meterkast bevindt.
Via de entree komen we de L-vormige woonkamer binnen. Hier ligt een plavuizen vloer met vloerverwarming in een mooie lichtbeige kleur, die drempelloos is doorgelegd naar de keuken. De zithoek is gelegen aan de voorzijde van de woning. Er is voldoende ruimte voor een grote hoekbank, salontafel en tv-meubel. Het eetgedeelte bevindt zich aan de achterzijde van de woning, met zicht op de achtertuin. De woonkamer is heerlijk licht dankzij de grote raampartijen.
Naast de eethoek kijken we aan de rechterkant de keuken in. Deze is opgesteld in een L-vorm. In de keuken vinden we de volgende apparatuur: een inductiekookplaat (uit 2024) met een RVS-afzuigkap erboven, anderhalve spoelbak, een dubbele kraan waarvan één een Quooker-kraan is, een combimagnetron, een koelkast en vriezer.
Vanuit de keuken is er toegang tot de achtertuin, gelegen op het noordoosten. De achtertuin heeft een buitenkraan, is grotendeels bestraat met tegels en beschikt tevens over groenborders. De bewoners laten de tuintafel met 4 stoelen én de loungeset achter voor de kopers! Achter in de tuin vinden we nog een ruime schuur met elektra. Naast de schuur is er een overkapping met een achterom naar het achtergelegen parkeerplein. Het parkeerplein biedt heerlijk veel parkeerruimte, maar ook in andere straten van de wijk kan uiteraard geparkeerd worden.
We gaan terug naar binnen. Tussen de woonkamer en de keuken bevindt zich een hal met het toilet en de trapopgang naar de 1e verdieping. Het toilet is voorzien van een hangend closet en een fonteintje.
Eerste verdieping:
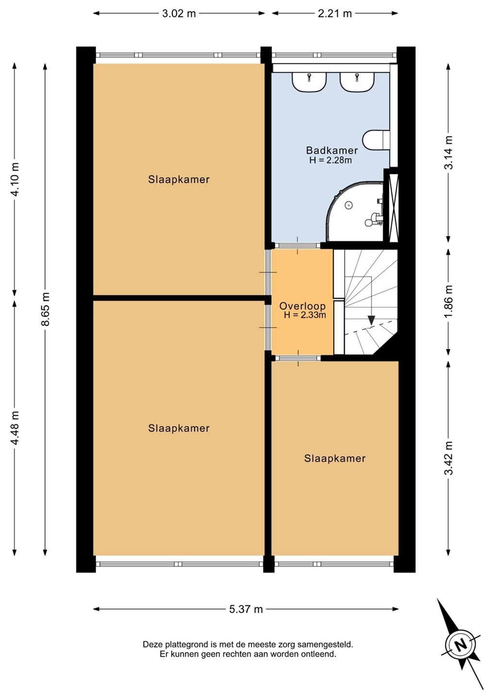
We gaan verder naar de 1e verdieping en komen aan op de overloop met toegang tot de 3 slaapkamers, de badkamer en de trapopgang naar de 2e verdieping. De slaapkamer die momenteel in gebruik is als hoofdslaapkamer, is gelegen aan de voorzijde van de woning. De andere 2 slaapkamers zijn eveneens lekker ruim! Verder vinden we boven het trapgat airconditioning, deze kan de verdieping in de zomermaanden heerlijk koel houden.
We gaan verder naar de grote badkamer. Hier bevinden zich een douchecabine, 2 wastafels met spiegels erboven, een 2e toilet en een wastafelmeubel. Ook is er een raam, wat zorgt voor natuurlijke lichtinval en ventilatie. Daarnaast is er elektrische vloerverwarming en zijn in het plafond lichtspots verwerkt.
Tweede verdieping:
Middels een vaste trap bereiken we de 2e verdieping. De verdieping is opgedeeld in 2 ruimtes: een voorzolder en een slaapkamer. Op de voorzolder bevinden zich de aansluitingen voor de wasmachine en de droger. De 2e verdieping heeft maar liefst 2 dakkapellen aan beide kanten van de woning, deels op de voorzolder en deels in de slaapkamer. De slaapkamer is heerlijk ruim en biedt veel mogelijkheden. Deze ruimte zou zelfs in 2 slaapkamers opgesplitst kunnen worden. De warmtepomp (Panasonic 5 kilowatt, uit 2017) is bevestigd aan de schoorsteen buiten, bereikbaar vanuit een toegangsluik op de voorzolder.
Bijzonderheden:
*Bouwjaar 1971, eigen grond
*Oplevering mogelijk vanaf half mei 2026
*Warmtepomp uit 2017
*Energielabel A++
*19 zonnepanelen verdeeld over de daken van de woning, dakkapel en de schuur
*De verdiepingsvloeren zijn geïsoleerd
*De woning is volledig voorzien van dubbele beglazing en houten kozijnen waarvan het buitenschilderwerk in nog 2025 gedaan is
*De woning wordt verkocht met een ouderdomsclausule
Deze informatie is door ons met de nodige zorgvuldigheid samengesteld. Onzerzijds wordt echter geen enkele aansprakelijkheid aanvaard voor enige onvolledigheid, onjuistheid of anderszins, dan wel gevolgen daarvan. Alle opgegeven maten en oppervlakten zijn indicatief.