Beschrijving
Deze tussenwoning met vrij uitzicht over een singel en het park is gunstig gelegen dicht bij het centrum. Basisscholen, winkels, bushalte en het park bevinden zich alle op loopafstand. De woning is netjes onderhouden en biedt een fijne basis voor de nieuwe eigenaar. De hardhouten kozijnen zijn in 2025 aan de buitenzijde geschilderd en voorzien van dubbel glas. Er zijn 4 slaapkamers: 3 op de 1e verdieping en nummer 4 op de 2e verdieping. De badkamer beschikt over een douchecabine, een wastafel en een 2e toilet. De achtertuin is netjes onderhouden en gelegen op het zuidwesten, waardoor u hier optimaal van de zon kunt genieten.
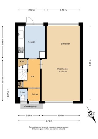
INDELING
Tuin
De voortuin is deels bestraat en voorzien van borders met vaste beplanting. De tuin is ruim en erg netjes onderhouden, wat direct zorgt voor een verzorgde eerste indruk.
Begane grond
In de entree bevinden zich het toilet, de garderobe, de meterkast en een trapkast. Het toilet is volledig betegeld. Onder de trap bevindt zich een trapkast met praktische bergruimte.
De doorzonwoonkamer, met vloerbedekking, is heerlijk licht en biedt vrij uitzicht op het park. Daarachter ligt de boulevard, een heerlijke plek om te wandelen, fietsen en cruiseschepen voorbij te zien komen – een uniek en levendig uitzicht.
De keuken is geplaatst in een rechte opstelling en uitgevoerd in gebroken wit met een kunststof aanrechtblad. Op de achterwand is hetzelfde patroon en materiaal als het aanrechtblad gebruikt, wat zorgt voor een rustig geheel. De keuken biedt volop opbergruimte in de onder- en bovenkastjes en hier bevinden zich tevens een vriezer, vaatwasser, close-in-boiler en een 4-pits gasfornuis met daarboven een afzuigkap. Aan de rechterzijde van de keuken bevindt zich nog een hoge kast met daarin de koelkast en de combimagnetron. Ernaast bevinden zich nog 2 hangende kasten. Hieronder past prima een eettafel, waardoor er ruimte is voor een gezellige eetplek.
Vanuit de keuken is er toegang tot de, op het zuidwesten gelegen, goed onderhouden achtertuin.
De achtertuin is grotendeels betegeld en voorzien van borders met vaste beplanting. Achter in de tuin staat een stenen berging, voorzien van elektra en een achterom. Over de gehele breedte van de achterpui hangt een elektrisch bedienbaar zonnescherm.
Eerste verdieping
Via de trap in de hal bereiken we de eerste verdieping. De overloop geeft toegang tot de 3 slaapkamers, de badkamer en de trapopgang naar de 2e verdieping.
De master bedroom en de tweede slaapkamer zijn gelegen aan de achterzijde van de woning en hebben zicht op de achtertuin. De derde, ruime slaapkamer ligt aan de voorzijde van de woning, met prachtig vrij uitzicht richting de singel, het park en de boulevard. Alle slaapkamers zijn voorzien van vloerbedekking.
De badkamer is volledig betegeld met een crème/zand gewolkte tegel, zowel op de muur als op de vloer. Er is een douchecabine, een 2e toilet, een wastafel en de aansluiting voor de wasmachine. Daarnaast is er een raam aanwezig, wat zorgt voor prettig natuurlijk daglicht en ventilatie.
Tweede verdieping
Door middel van een vaste trap komen we op de 2e verdieping, waar de ruimte is opgedeeld in een voorzolder en een slaapkamer. Op de voorzolder hangt de cv-ketel (AWG, 2015) en is er een dakraam aanwezig.
De slaapkamer is voorzien van een dakkapel aan de achterzijde, waardoor er een lichte en ruime slaapkamer is ontstaan. Zowel de voorzolder als de slaapkamer beschikken over veel bergruimte.
Bijzonderheden
· Bouwjaar ca. 1965, eigen grond
· Oplevering in overleg
· Cv-ketel (AWG, 2015)
· Hardhouten kozijnen met dubbele beglazing (met uitzondering van de voordeur). Deze zijn in 2025 nog aan de buitenzijde geschilderd
· Energielabel C
· De woning wordt verkocht met een niet-bewonersclausule en een ouderdomsclausule; de verkopers hebben de laatste jaren de woning zelf niet meer bewoond, waardoor zij niet op de hoogte zijn van alle ins en outs van de woning.
Deze informatie is door ons met de nodige zorgvuldigheid samengesteld. Onzerzijds wordt echter geen enkele aansprakelijkheid aanvaard voor enige onvolledigheid, onjuistheid of anderszins, dan wel de gevolgen daarvan. Alle opgegeven maten en oppervlakten zijn in