Beschrijving

Deze tussenwoning is gelegen in een gezellige, rustige straat in een kindvriendelijke buurt. Met de speeltuin om de hoek, basisscholen en het centrum op loopafstand is de ligging zeer centraal.
De woning beschikt over een doorzonwoonkamer met open keuken en een aangebouwde serre. Vanuit de serre is er toegang tot de op het zuiden gelegen achtertuin. Op de eerste verdieping bevinden zich drie slaapkamers en een badkamer. Daarnaast beschikt de woning over een bergzolder, bereikbaar via een vlizotrap.

INDELING

De voortuin is grotendeels betegeld. Voor de woning ligt een net onderhouden gazon met een voetpad.

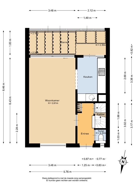
Begane grond

Via de entree komt u in de hal met trapopgang naar de eerste verdieping, de meterkast, het toilet en een trapkast met daaronder een kelderruimte. Het toilet is halfhoog betegeld en voorzien van een hangend toilet.
De doorzonwoonkamer kenmerkt zich door de grote raampartijen, waardoor er veel natuurlijk licht binnenvalt. Aan de voorzijde bevindt zich de zithoek en aan de achterzijde het eetgedeelte. Vanuit hier geeft een schuifpui toegang tot de serre.
De serre is voorzien van openslaande deuren naar de achtertuin en hier bevindt zich tevens de aansluiting voor de wasmachine.
De ruime achtertuin ligt op het zuiden en is grotendeels betegeld. Aan één zijde bevindt zich een haag als erfafscheiding en aan de achterzijde een houten schutting met poort. Achter in de tuin staat een stenen schuur die wordt gedeeld met de buren; het voorste gedeelte behoort bij deze woning.
De keuken beschikt over veel kastruimte en is voorzien van een wasbak, een 4-pits gaskookplaat met RVS-afzuigkap, een koelkast, een combimagnetron en een vaatwasser. Vanuit de keuken is eveneens toegang tot de serre.

Eerste verdieping

De overloop biedt toegang tot drie slaapkamers en de badkamer.
De master bedroom is gelegen aan de achterzijde van de woning en is voorzien van een airco. Daarnaast bevindt zich, eveneens aan de achterzijde, een knusse slaapkamer met ruimte voor een eenpersoonsbed. In deze kamer bevindt zich een vaste kast met daarin de cv-ketel (Remeha, 2015). Vanuit deze kamer is er toegang tot een klein balkon.
Aan de voorzijde van de woning bevindt zich de derde slaapkamer. Alle slaapkamers en de overloop zijn voorzien van een laminaatvloer.
De badkamer is grotendeels betegeld en beschikt over een regen- en handdouche, een wastafel met onderkast en een spiegel. Op de vloer ligt een grote vierkante grijze tegel en de wanden zijn afgewerkt met rechthoekige witte tegels. Daarnaast beschikt de badkamer over een raam, wat zorgt voor natuurlijke lichtinval en ventilatiemogelijkheden.
De bergzolder is bereikbaar via een luik op de overloop met een vlizotrap en biedt extra bergruimte.

BIJZONDERHEDEN
*Bouwjaar ca. 1959, eigen grond
*Oplevering: per direct 
*CV-ketel Remeha (2015)
*Woning grotendeels voorzien van houten kozijnen met dubbel glas (met uitzondering van de voordeur en het wc-raampje)
*Energielabel D
*De woning wordt verkocht met een ouderdomsclausule

Deze informatie is door ons met de nodige zorgvuldigheid samengesteld. Onzerzijds wordt echter geen enkele aansprakelijkheid aanvaard voor enige onvolledigheid, onjuistheid of anderszins, dan wel gevolgen daarvan. Alle opgegeven maten en oppervlakten zijn indicatief.

Kenmerken