Beschrijving

Leuke en verzorgde hoekwoning met een ruime, lichte woonkamer, een open keuken en maar liefst drie comfortabele slaapkamers, waardoor deze woning bij uitstek geschikt is voor gezinnen. De badkamer is stijlvol uitgevoerd in zwart-, wit- en grijstinten en beschikt over een douchecabine, wastafel en een tweede toilet. Zowel aan de voor- als achterzijde heeft de woning een fijne tuin: aan de voorzijde een plek om van de zon te genieten en aan de achterzijde een praktische tuin met achterom naar de stenen berging.

Rozenburg is een groen en rustig dorp met een ideale verbinding richting Rotterdam en Zeeland. Sinds de komst van de Blankenburgverbinding ben je bovendien snel in het Westland en rijd je gemakkelijk door richting de regio Den Haag. Rozenburg staat bekend als een prettig en vriendelijk dorp waar iedereen zich snel thuis voelt.

INDELING:

Voortuin:
Door aankoop van een extra perceel is de voortuin ruim opgezet. De tuin is gelegen op het westen en is prima onderhouden. Er is elektra aanwezig en een buitenkraan. De tuin is gedeeltelijk betegeld met grindtegels en voorzien van borders met vaste beplanting. Er is een elektrisch bedienbaar zonnescherm aanwezig.

Aan de achterzijde van de woning bevindt zich een op het oosten gelegen en grotendeels betegelde tuin met achterom en een stenen berging. Ook hier is elektra aanwezig en een buitenkraan. Over de gehele breedte van de woning is een handbediend zonnescherm geplaatst.

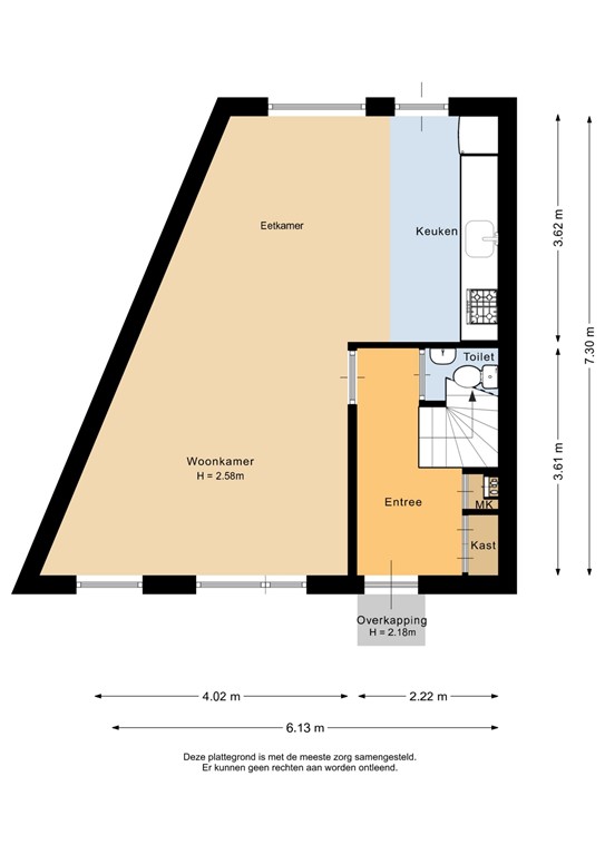
Begane grond:
We komen binnen via de voordeur in de hal. Hier heeft u direct zicht op de grijsbruine laminaatvloer, die is doorgelegd over de gehele benedenverdieping. De garderobe en de meterkast zijn netjes weggewerkt in een vaste kast. In de hal bevindt zich tevens het toilet. Dit is voorzien van een tegelvloer, de wanden zijn halfhoog betegeld met zandkleurige tegels en er is een fonteintje aanwezig.

Vanuit de hal komen we in de L-vormige woonkamer met open keuken. De woonkamer loopt enigszins taps toe, wat zorgt voor een speelse indeling. Aan de voor- en achterzijde bevinden zich grote raampartijen, waardoor de ruimte heerlijk licht is; oftewel een fijne doorzonwoning. Oorspronkelijk was de keuken afgesloten van de woonkamer, maar doordat de wand bij de keuken is verwijderd, is de L-vormige opstelling ontstaan.
De open keuken is uitgevoerd in houtlook met een licht kunststof aanrechtblad en diverse apparatuur. De achterwand is gedeeltelijk betegeld met witte, vierkante tegels. De volgende apparatuur is aanwezig in de keuken: een vaatwasser, magnetron, koel-vriescombinatie, gaskookplaat met oven en daarboven een afzuigkap. Vanuit de keuken is er toegang tot de achtertuin.

Eerste verdieping:
Boven komen we aan op de overloop met toegang tot twee slaapkamers, de badkamer en de trapopgang naar de tweede verdieping. De gehele verdieping is voorzien van bruine vloerbedekking.
De eerste slaapkamer is gelegen aan de voorzijde van de woning. De tweede slaapkamer bevindt zich aan de achterzijde en is vergroot door twee slaapkamers samen te voegen tot één ruime slaapkamer. Een heerlijke, grote slaapkamer met voldoende ruimte voor een grote kast.
De badkamer is uitgevoerd in zwart-, wit- en grijstinten en is volledig betegeld. De badkamer beschikt over een douchecabine, tweede toilet, designradiator en een wastafel met onderkast. Boven de wastafel hangt een spiegel. Fijn is dat de badkamer een raam heeft, wat zorgt voor zowel daglicht als ventilatie.

Tweede verdieping:
Deze verdieping was oorspronkelijk een open ruimte, maar wat een verrassing om hier nog een slaapkamer te vinden. Ruim, licht en ook prima geschikt als master bedroom. Er is een dakraam aanwezig en bergruimte achter de schotten.
Op de voorzolder bevinden zich de wasmachine en droger en hier is tevens de lease-cv-ketel (Intergas, bouwjaar 2022) opgesteld. De gehele verdieping is voorzien van vloerbedekking.

Bijzonderheden:
*Bouwjaar 1983, eigen grond
*Oplevering in overleg (beschikbaar vanaf maart 2026)
*Cv-ketel Intergas (2022), lease
*De woning is voorzien van houten kozijnen met gedeeltelijk dubbelglas; bovenlichtjes zijn enkelglas en diverse ramen op de eerste verdieping zijn enkelglas
*Zowel de voor-als achtertuin hebben een zonnescherm met hetzelfde doek. Voorzijde elektrisch, achterzijde handbedienaar.
*Energielabel C
*De woning wordt verkocht met een ouderdomsclausule

Deze informatie is door ons met de nodige zorgvuldigheid samengesteld. Onzerzijds wordt echter geen enkele aansprakelijkheid aanvaard voor enige onvolledigheid, onjuistheid of anderszins, dan wel de gevolgen daarvan. Alle opgegeven maten en oppervlakten zijn indicatief.

Kenmerken