Beschrijving
Deze lichte tussenwoning met 3 slaapkamers en een uitbouw op de begane grond is gelegen in een fijne woonwijk aan de Kastanjelaan in Rozenburg. De woning is voorzien van kunststof kozijnen met dubbele beglazing.
De woning ligt in een kindvriendelijke woonwijk. De supermarkt bevindt zich op korte afstand, evenals een park en de boulevard. Rozenburg is een groen en rustig dorp met een ideale verbinding richting Rotterdam en Zeeland. Sinds de komst van de Blankenburgverbinding ben je bovendien snel in het Westland en rijd je gemakkelijk door richting de regio Den Haag. Rozenburg staat bekend als een prettig en vriendelijk dorp waar iedereen zich snel thuis voelt.
INDELING
Voortuin:
Aan de voorzijde beschikt de woning over een voortuin met betegeling en struiken. Voor de voortuin ligt een stoep.
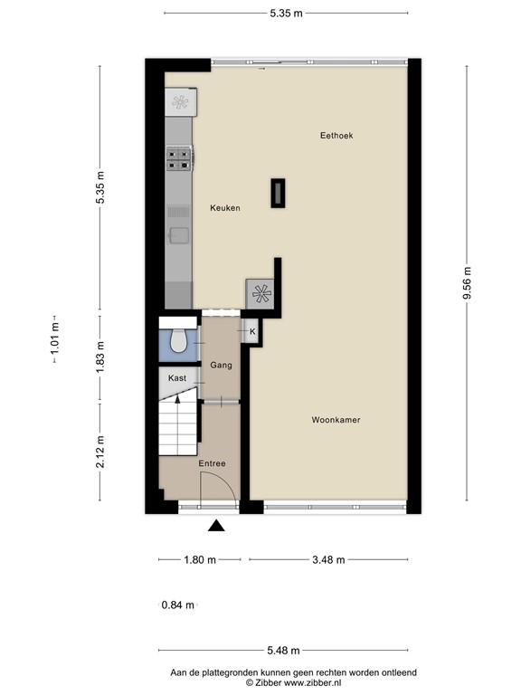
Begane grond:
Entree, hal voorzien van meterkast, trapkast, de trapopgang naar de 1e verdieping en het toilet. Het toilet is half betegeld met een grijze tegel en een houtlook tegel en is voorzien van een hangend closet. Over de gehele begane grond ligt een laminaatvloer in grijze betonlook. De lichte doorzonwoonkamer met uitbouw beschikt over veel raampartijen en een schuifpui die toegang biedt tot de tuin. De open keuken heeft een rechte opstelling en is voorzien van een koel-vriescombinatie, vaatwasser, oven, magnetron en een gasfornuis met daarboven een afzuigkap. De rechte opstelling zorgt voor veel ruimte en een fijne, directe verbinding met de eethoek.
Achtertuin:
Vanuit de keuken heeft u toegang tot de achtertuin, gelegen op het zuidoosten. De tuin is volledig betegeld, voorzien van moderne schuttingen, een stenen berging met elektra en beschikt over een achterom.
Eerste verdieping:
De overloop biedt toegang tot 3 slaapkamers, de badkamer en een bergkast. De grootste slaapkamer bevindt zich aan de achterzijde en heeft uitzicht op de achtertuin. De tweede slaapkamer aan de achterzijde is iets kleiner van formaat, maar kan ook prima worden ingericht als kinderslaapkamer. Slaapkamer 3 is gelegen aan de voorzijde van de woning en is eveneens ruim van opzet. De bergkast is diep en biedt veel ruimte voor bijvoorbeeld beddengoed, handdoeken of voorraadspullen.
De badkamer is aan de wanden betegeld met witte tegels en op de vloer ligt een antracietkleurige tegel. De badkamer is voorzien van een inloopdouche en een wastafelmeubel met spiegel. Daarnaast is er een raam aanwezig, wat zorgt voor prettige natuurlijke ventilatie.
Tweede verdieping:
Middels een vaste trap bereiken we de tweede verdieping, waar de ruimte is opgedeeld in twee delen. Op de voorzolder bevinden zich de aansluitingen voor de wasmachine en is de huur cv-ketel (Intergas 2018) geplaatst en is er knieschotruimte. Het tweede gedeelte van deze verdieping wordt op dit moment gebruikt als bergzolder met knieschotruimte. Op de vloer ligt een laminaatvloer in lichte houtkleur. Vanwege de stahoogte mag de tweede verdieping niet worden meegerekend als gebruiksoppervlakte wonen, maar wordt deze aangemerkt als overig inpandige ruimte (meetrapport aanwezig).
Bijzonderheden
*Bouwjaar: 1966
*Oplevering februari 2026
*Energielabel C
*Huur cv-ketel (Intergas 2018) voor €41,- per maand
*De woning is vrijwel volledig voorzien van kunststof kozijnen met dubbele beglazing, met uitzondering van het dakraam op de tweede verdieping, dat is uitgevoerd in een houten kozijn met dubbele beglazing
*Uitbouw op de begane grond
*De woning wordt verkocht met een ouderdomsclausule
Deze informatie is door ons met de nodige zorgvuldigheid samengesteld. Onzerzijds wordt echter geen enkele aansprakelijkheid aanvaard voor enige onvolledigheid, onjuistheid of anderszins, dan wel gevolgen daarvan. Alle opgegeven maten en oppervlakten zijn indicatief.
Plattegronden
180354277_1597456_kasta_begane_grond_first_design_20251213_61d33f.jpg
180354277_1597456_kasta_eerste_verdiepi_first_design_20251213_8bfaf4.jpg
180354277_1597456_kasta_tweede_verdiepi_first_design_20251213_54a271.jpg
180354277_1597456_kasta_berging_first_design_20251213_06b2e8.jpg