Beschrijving

Welkom aan de Esdoornlaan 150! Een fijne en goed onderhouden tussenwoning met een heerlijk vrij uitzicht over de singel en het park. De woning beschikt over maar liefst 4 slaapkamers, een moderne badkamer uit 2023, een dakkapel op de 2e verdieping en een zonnige achtertuin gelegen op het zuidwesten. De woning is altijd keurig netjes onderhouden en dat is duidelijk terug te zien! Daarnaast hebben de huidige bewoners veel aandacht besteed aan verduurzaming door middel van toegepaste isolatie en zonnepanelen. De woning heeft een prachtig energielabel B!
De woning is gelegen aan een park en dichtbij de boulevard van Rozenburg. Dit zijn heerlijke plekken om te wandelen en te genieten van al het groen dat Rozenburg te bieden heeft. Daarnaast bevinden de bushalte en het winkelcentrum op korte loopafstand.


INDELING

Voortuin

De verzorgde voortuin is voorzien van een moderne tegel en twee bomen. Boven de voordeur hangt een luifel.

Begane grond
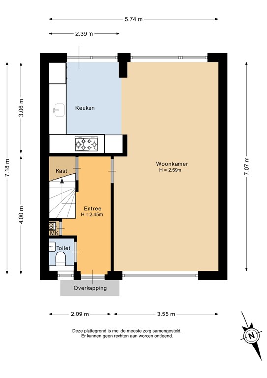
Entree, hal voorzien van een moderne meterkast, trapkast, trapopgang naar de 1e verdieping en het toilet. Het toilet is volledig betegeld en afgewerkt met een antraciete vloertegel en antraciet-witte wandtegels en is voorzien van een fonteintje. Vanuit de hal stappen we de fijne, lichte woonkamer binnen. Over de gehele begane grond ligt een nette laminaatvloer (geplaatst in 2022) in een mooie vergrijsde houtlook. Aan de voorzijde is er een groen uitzicht over de singel en het park. Het eetgedeelte biedt leuk zicht op de tuin en staat in open verbinding met de keuken.
De keuken is uitgevoerd met witte hoogglans kastjes en een zwart natuurstenen aanrechtblad met bijpassende achterwand. Hier vinden we diverse inbouwapparatuur terug, waaronder een Quooker-kraan, koelkast, vriezer, vaatwasser, combi-oven/combimagnetron en een 5-pits gaskookstel met daarboven een afzuigkap. Vanuit de keuken is er toegang tot de achtertuin.
De achtertuin heeft een moderne uitstraling dankzij de antraciete tegels en zwarte schuttingen aan één zijde. De andere zijde is voorzien van een mooie houten schutting met donkere betonpalen, wat zorgt voor een mooi geheel. De borders zijn gevuld met vaste struiken en een boom. Aan de gevel hangt een zonnescherm over de gehele breedte van de woning. Achterin de tuin bevinden zich een stenen berging (voorzien van elektra), een tweede houten berging met een stukje overkapping en een achterom.

Eerste verdieping
De overloop biedt toegang tot drie fijne slaapkamers, de badkamer en de trapopgang naar de 2e verdieping. De hoofdslaapkamer is gelegen aan de achterzijde en is voorzien van rolluiken. Slaapkamer 2, eveneens aan de achterzijde, is iets kleiner van formaat maar biedt voldoende ruimte voor een volwaardige slaapkamer en beschikt ook over rolluiken. Slaapkamer 3 is gelegen aan de voorzijde van de woning, is eveneens lekker ruim en heeft een mooi uitzicht over de singel en het park.
We komen aan bij de moderne badkamer uit 2023. Op de vloer ligt een grijze betonlook tegel en de achterwand van de inloopdouche is afgewerkt met een prachtige groene tegel: een echte eyecatcher en helemaal van nu! De zwarte inloopdouche beschikt over een glazen deur en een goudkleurige douchekop. Het wastafelmeubel is zwart en afgewerkt met een marmerlook blad en een zwarte waskom met een goudkleurige kraan. Daarnaast hangt hier een zwarte designradiator. Erg praktisch is het raam in de badkamer, ideaal voor natuurlijke ventilatie. Verder is hier de aansluiting voor de wasmachine aanwezig.

Tweede verdieping
Middels een vaste trap bereiken we de 2e verdieping, waar de ruimte is opgedeeld in twee delen. Op de voorzolder bevinden zich de aansluiting voor de droger, de omvormer voor de zonnepanelen en de cv-ketel (Remeha, 2009). Het tweede gedeelte van deze verdieping biedt een heerlijke vierde slaapkamer. Hier is een dakkapel geplaatst, voorzien van kunststof kozijnen. Het dak is goed geïsoleerd, wat zorgt voor een aangename leefruimte. Op de vloer ligt een mooie laminaatvloer uit 2023 en op het dak liggen 7 zonnepanelen.

Bijzonderheden
*Bouwjaar: 1964
*Aan de voorzijde vrij uitzicht op de singel en het park
*Zonwering en rolluiken aan de tuinzijde 
*Gehele woning voorzien van HR++ glas
*Spouwmuurisolatie, vloerisolatie en dakisolatie toegepast
*Dakkapel op de 2e verdieping met kunststof kozijnen
*Schilderwerk binnenkant woning 2023, buitenzijde (aanvullen)
*Cv-ketel Remeha uit 2009
*Energielabel B
*In de koopovereenkomst wordt een ouderdomsclausule opgenomen
*Oplevering in overleg

Deze informatie is door ons met de nodige zorgvuldigheid samengesteld. Onzerzijds wordt echter geen enkele aansprakelijkheid aanvaard voor enige onvolledigheid, onjuistheid of anderszins, dan wel gevolgen daarvan. Alle opgegeven maten en oppervlakten zijn indicatief.

Kenmerken